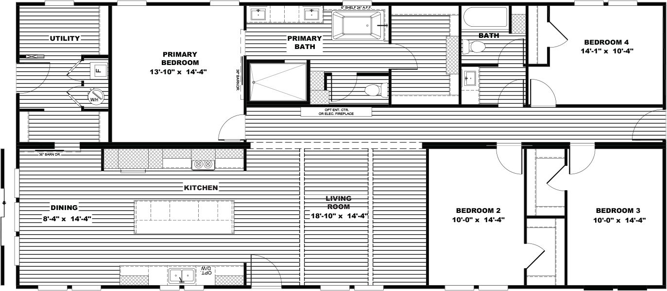
Boujee Premier
4 beds
2 baths
2040 sq ft
32' x 68'
Contact Us For Pricing
Request Info
×
Floor Plan
